logo
   加入收藏 | 网站地图| 企业邮局
热线电话:15961576985
主页导航 关于我们 产品展示 新闻动态 生产车间 在线留言 江南(中国)
    • 以人才为根本 以市场为导向
      以质量为保证 以服务为宗旨
      真诚的希望同广大客户精诚合作,共创辉煌
     
    产品列表  
    柴油过滤脱色设备系列
    液体过滤、分离、净化设备
    反应设备系列
    换热设备系列
    输送泵系列
    储罐设备
    江南(中国)

    销 售 部:15961576985 王先生
    固 话:0510-80751709
    传 真:0510-80751709
    邮 箱:wangyunchuan86@163.com
    网 址: www.littlefieldcottage.com
    地 址:江苏省宜兴市万石工业园

     
    当前位置:首页 > 产品展示 > 管道过滤器
    管道过滤器

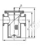
    结构和原理:
            篮式过滤器由过滤壳体、过滤网篮组成,过滤网篮由不锈钢多孔板,不锈钢编织网组成,具有流量大,重复使用,无滤材消耗等特点,设备材质可选择碳钢、不锈钢;结构形式有T形、Y形等,也可以根据用户的要求定制。The structure and principle: basket filter comprises a filter shell, filter basket, filter basket is made of stainless steel porous plate, stainless steel wire mesh, with large flow, repeated use, no material consumption, equipment material available in carbon steel, stainless steel; structure in the form of T shape, Y shape, can also according to customer requirements custom.
    参考性能参数 refer. parameters:
     篮式过滤器 Basket filter
    参考结构图 refer. structure 结构尺寸 Structure dimensions


    公称通径DN Φ L H1 H2 H3 B 有效过滤面积(m2) Available filter area 倍数 multiple 重量(Kg) weight
    25 89 220 160 260 360 R1/2“ 0.003619 6 15.7/13.8
    32 89 220 165 270 370 R1/2“ 0.003619 4.5 19.2/16..5
    40 114 280 180 300 400 R1/2“ 0.005718 4.5 23.6/19
    50 114 280 180 300 400 R1/2“ 0.005718 3 28.9/23
    65 140 330 220 350 460 R1/2“ 0.009613 3 48.4/39
    80 168 340 260 400 510 R1/2“ 0.01539 3 65.3/53
    100 219 420 310 470 580 R3/4“ 0.02464 3 89.3/76
    150 273 500 430 620 730 R3/4“ 0.04866 3 148.0/126
    200 325 560 530 780 900 R3/4“ 0.07858 2.5 185/158
    250 426 660 640 930 1050 R3/4“ 0.12005 2.5 230/195
    300 478 750 840 1200 1350 R3/4“ 0.16537 2.3 307/260
    相关产品
     width='150' style='border:1px #CCCCCC solid; padding:2px'/><br />一米八一体式脱色罐带泵(整机)</a></td><td align='center' style='line-height:180%;'><a href='product_234_pone__ptwo_' title='快开式一米五脱色罐带泵带精滤(整机)'><img src=uploadfiles/2017928/20179289932531.jpg alt=
    快开式一米五脱色罐带泵带精滤(整机)
     width='150' style='border:1px #CCCCCC solid; padding:2px'/><br />快开式一米五脱色罐带泵(整机)</a></td><td align='center' style='line-height:180%;'><a href='product_246_pone__ptwo_' title='快开式一米五脱色罐(单机)'><img src=uploadfiles/2017928/201792895238449.jpg alt=
    快开式一米五脱色罐(单机)
        
    COPYRIGHT © 2014-2016   江南官方网页版 版权所有.                    苏ICP备16017244号-1
    地址:江苏省宜兴市万石工业园  手机:15961576985 王先生  18251552308 张先生  固话:0510-80751709  传真:0510-80751709  网址:www.littlefieldcottage.com